• お気に入り
  • プライバシーポリシー
  • サイトマップ

BraTTo不動産 FC鶴見放出店

有限会社ホーム・アライブ 電話番号06-6964-1080

10:00~19:00 水曜日定休

日宝ライフ放出西 4階

  • 礼金0
  • 敷金0

お問い合わせ番号: 13915493

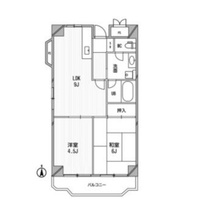
部屋紹介

間取り 間取り詳細 専有面積 賃料 管理費/共益費 敷金(保証金) 礼金 採光向き
2LDK 洋室 4.5畳
LDK 9畳
和室 6畳
43.88㎡

82,000

10,000円 - 無料

物件写真

物件情報は代表的なお部屋を掲載しております。
建物内の別の間取りでも空室がある場合がございます。
ご指名物件の空室待ちなども受付けておりますので、お電話かメールにてスタッフまでお申付下さい。
※写真や図と現況が異なる場合は現況を優先させていただきます。

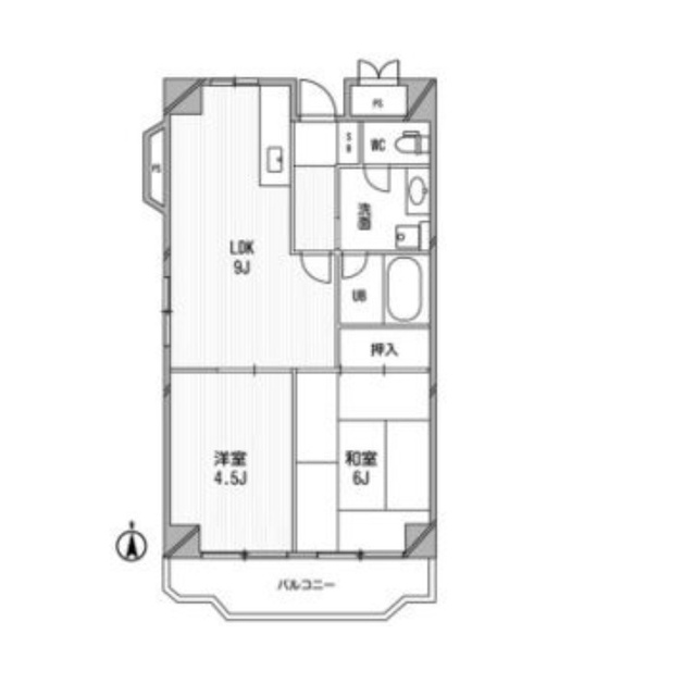
部屋紹介

間取り 2LDK
間取り詳細 洋室 4.5畳 、 LDK 9畳 、 和室 6畳

物件概要・設備
情報登録日:2026年02月27日 情報更新日:2026年04月13日 次回更新予定日:2026年04月27日

物件種別 マンション
物件名 日宝ライフ放出西
所在地 大阪府大阪市城東区放出西2丁目
交通
  • JRおおさか東線「放出駅」より徒歩10分
  • JR片町線「放出駅」より徒歩10分
  • OsakaMetro長堀鶴見緑地線「今福鶴見駅」より徒歩10分
  • OsakaMetro今里筋線「鴫野駅」より徒歩17分
近隣情報
  • スーパー: (株)コーセツ放出 距離637m
  • スーパー: サンディ今福店 距離752m
  • スーパー: イズミヤ今福店 距離819m
  • ドラッグストア: 上杉謙信堂鶴見店 距離572m
  • ドラッグストア: ダイコクドラッグ放出駅前店 距離734m
  • ホームセンター: ホームセンターコーナン内環放出東店 距離267m
  • 病院: 城東病院 距離225m
  • 郵便局: 城東放出西郵便局 距離219m
特記事項 子供可、法人限定、ペット不可、保証会社利用可
賃料 82,000円 管理費/共益費 10,000円
敷金 - 礼金 無料
フリーレント - 保険 2年 24000円
間取り 2LDK 専有面積 43.88㎡
採光向き 契約形態 普通契約 2年
所在階 4階 入居可能日 2026/4/下
総戸数 43戸 築年月 1989年6月
建築構造 RC 建物階建 地上8階 
駐車場 空無 駐車料 -
火災保険 鍵交換代 11,000円
保証会社 要加入 /  エポス
初回:総額の30% 月次保証料:総額の1.3%
諸経費 -
設備 ガス(都市ガス)、防犯カメラ、オートロック、専用ゴミ置き場(あり)、フローリング、照明器具、ベランダ・バルコニー、収納スペース、クローゼット、クローゼット数(1)、押入れ、バス・トイレ別(別室)、シャワー、脱衣所、給湯、洗面台、洗面所独立、洗濯機置き場(室内)、コンロ設置可、コンロ種類(都市ガス)、BS、CATV、有線、光ファイバー
備考 -

近隣マップ

日宝ライフ放出西へのお問い合わせ

BraTTo不動産 FC鶴見放出店

06-6964-1080

お問い合わせ番号: 13915493

所在地 〒538-0044 大阪市鶴見区放出東3丁目31-28
営業時間 10:00~19:00 定休日 水曜日定休

お問い合せフォーム

必須お名前
必須フリガナ
必須メールアドレス
任意電話番号
連絡ご希望の時間帯
任意FAX番号
任意郵送 住所
必須お問い合わせ内容

個人情報のお取り扱いについて

お問い合わせフォームからお客様が入力された個人情報は、資料送付・電子メール送信・電話連絡などの目的でのみ使用いたします。 また、本サービスを円滑に運用するために、お客様の個人情報をサービスご利用の控えとして一定期間保管いたします。 メールアドレス・電話/FAX番号など、ご記入の内容が不明確でご連絡差し上げる事ができない場合、当社が本サービスを円滑に運用するために必要な範囲において直接確認のご連絡をさせていただく場合がありますのであらかじめご了承ください。 個人情報の取扱い方針については、こちらをご覧ください。